高松市今里町 新築未入居戸建て

1,980万円

香川県高松市今里町

高松琴平電気鉄道琴平線「栗林公園」駅徒歩12分

高松琴平電気鉄道琴平線「三条」駅徒歩12分

高徳線「栗林」駅徒歩15分

価格
1,980万円
間取り
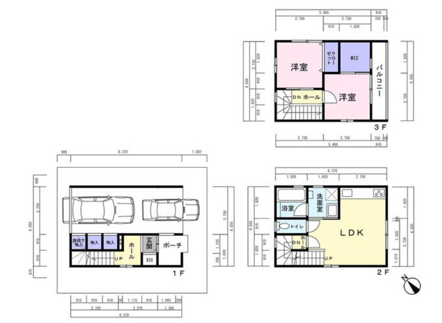
2LDK
土地面積
50.70㎡
所在地
香川県高松市今里町
交通

高松琴平電気鉄道琴平線栗林公園」駅 徒歩12分

高松琴平電気鉄道琴平線三条」駅 徒歩12分

高徳線栗林」駅 徒歩15分

建物面積
60.44㎡
築年月
2024年5月(築1年)

現地見学会

日時 2025年6月26日 ~ 2025年9月30日  10:00 ~ 18:00
  • ※事前に必ずお問い合わせください
  • ☆予めご予約頂ければ、夜間・水曜日などでもご案内可能です!
    テレビ電話を用いたご案内なども承ります!

    ■完成済みの室内(建築中の場合、同タイプ室内)をご案内させて頂いております。間取りはもちろん充実の設備仕様まで隅々までご覧いただけます。
    ■購入後のアフターや、設計・施工もしっかりとお伝えさせて頂きます。
    ■税控除や住宅ローンの賢い借り方などお客様の得する情報をお伝えいたします。
    ■スタートの資金計画からご購入されて入居する手続きまでわかりやすくお知らせします!

    ◆ご案内方法◆
    弊社へのご来社、お住まいへのお迎え、周辺施設、ご見学物件での待ち合わせなど、
    ご希望をお伝えください。ご見学ご希望物件以外にも、ご希望に合わせた物件を
    あわせてご覧いただけます。
    ◆住宅ローン等各種ご相談もお気軽に承ります◆

物件の特徴

  • バストイレ別

  • 室内洗濯機置場

セールスポイント

小さなお子様がいる方もベビーカーは高低差の少ない平坦地がいいですよね。築2年以内の築浅物件です。駅まで徒歩12分と少し離れている物件です。設備や周辺環境が整っている中古戸建てはいかがでしょうか。高松市の豊富な一戸建て情報を取り扱っております。アクア不動産までは0877-35-7705からご連絡ください。

ポイント

収納豊富 自走式駐車場 駐車2台可 階段下収納 周辺交通量少なめ

担当者のコメント

西谷 尚之

2LDKの間取りで、二人暮らしにもオススメです。駅まで徒歩12分の場所に立地しています。ゆったりとしたオープン外構のスペースには花や緑が溢れています。ダウンライトがついていいるので、火災が起きたときに役立ちます。衣食住の中でも「住」というのは、とても重要なものです。安心して暮らせる住まいをお求めなら、当社まで是非ご連絡くださいませ。

基本情報

販売戸数
-
総戸数
-
間取り / 詳細
2LDK
LDK 10.2帖 1室/洋室 4.6帖 2室
向き
南東
建物面積(坪数)
60.44㎡(18.28坪)
土地面積(坪数)
50.70㎡(15.33坪)
建ぺい率 /
容積率
60%/200%
築年月
2024年5月(築1年)
駐車場 /
月額料金
有(2台) -
土地権利
所有権
土地
(敷金 / 保証金)
- / -
建物構造
木造 / 3階建
傾斜地部分面積
-
路地状敷地
-
私道負担面積
-
セットバック
高圧線下面積
-
施工会社
-
用途地域
第二種中高層住居専用
地目 / 地勢
宅地 / 平坦
接道状況
一方(南東 私道 4.2m 間口 5.9m)
国土法届出要否
不要
都市計画
非線引区域
総区画数 /
販売区画数
-/-
現況
完成済み
その他
法令上の制限
景観法
取引態様
一般媒介
引渡し
即時
取引条件の
有効期限
2025年12月23日

設備条件

設備条件
  • 閑静な住宅地 / 現地見学会 / 室内洗濯機置場 / フローリング / バルコニー / プロパンガス / 公営水道 / 公共下水 / 24時間換気システム / 駐車2台可 / ガスコンロ / コンロ2口以上 / コンロ3口 / バス・トイレ別 / エアコン / ウォークインクロゼット / 収納豊富
設備(その他)
    -

その他

物件番号
95551998
管理コード
-
建築確認番号
-
情報更新日
2025年12月10日
次回更新予定日
2025年12月23日
取扱会社
  • アクア不動産株式会社
  • 香川県坂出市京町3丁目7-44 
  • TEL:0877-35-7705
  • 香川県知事 (1) 第4672号
  • (公社)全日本不動産協会
    四国地区不動産公正取引協議会
備考
広々として段差の少ない平坦地は日常の生活も送りやすい場所となっております。周辺環境も充実している中古の戸建て物件です。駅まで歩いて行くことのできる、駅徒歩12分の物件です。ダウンライト付きの物件なので、夜も見やすく快適です。高松市にある高松琴平電気鉄道琴平線栗林公園近辺の一戸建て探しは、当社にお任せ下さい。ご依頼は0877-35-7705まで受け付けております。

支払いシミュレーション

月々の支払額
9.6
購入希望物件価格
万円
頭金
万円
金利
%
返済額(ボーナス1回分)
万円
返済期間

※ボーナスは自動で年2回分で計算されます。

近隣の物件

  1. オール電化デザイナーズハウス高松市三谷町④

    高松市三谷町

    3LDK (128.35㎡)

    3,798万円

  2. オール電化デザイナーズハウス高松市元山町⑰

    高松市元山町

    4LDK (103.02㎡)

    2,498万円

  3. 高松市上天神町新築戸建

    高松市上天神町

    5LDK (107.64㎡)

    2,498万円

  4. 仏生山町甲 中古住宅

    高松市仏生山町甲

    1LDK (97.66㎡)

    1,580万円

高松市今里町 新築未入居戸建て

高松市今里町 新築未入居戸建て

1,980万円

-

2LDK(60.44㎡)

お気軽にお問い合わせください

LINEからお問い合わせ 無料お問い合わせ

アクア不動産株式会社

0877-35-7705

10:00~18:00

(休:水曜日)